Donde los Sueños del Hogar se Hacen Realidad

Champions Pointe es una excepcional comunidad planificada con precisión, ofreciendo una variedad de casas adosadas nuevas y viviendas unifamiliares en venta en la próspera ciudad de ChampionsGate, FL.

Inicio

Esta comunidad está a solo 20 minutos en auto de Disney World por la I-4 y FL-429. La proximidad a la US-27 y otras rutas importantes ofrece viajes fáciles por Florida y sus emocionantes atracciones.

Vive la Excelencia en Champions Pointe

Situada en un destino de recreación y entretenimiento de primer nivel, esta comunidad ofrece un estilo de vida vibrante y emocionante para sus residentes.

Desde USD 370,999
3 Habs
2.5 Baños
1988 Pies2
2024
Miguel Hervas -
10752 Deerwood Park Blvd Ste # 100 Doral Florida 33178 Estados Unidos
+1 305 763 1572

Las comodidades en el lugar incluyen un área de juegos infantiles y una piscina con baño en la cabaña, además de un paquete de mantenimiento de jardín para propietarios.

Las amenidades de este proyecto están diseñadas para satisfacer las necesidades de los residentes

Inicio
Cocina
Para chefs caseros de todos los niveles, la moderna cocina está totalmente equipada con una isla central flexible que también funciona como barra de desayuno, abundante espacio en gabinetes y electrodomésticos nuevos de acero inoxidable.
Inicio
Dormitorio
La suite del propietario es un escape tranquilo y cuenta con un dormitorio espacioso para noches de descanso, un vestidor de gran tamaño y un baño estilo spa con bañera profunda para mayor lujo.
Inicio
Un espacio para ti
En el corazón de la casa, esta gran sala ofrece el lugar perfecto para organizar maratones de películas con sus seres queridos y disfrutar de actividades de ocio. El acceso directo a la terraza ofrece momentos serenos al aire libre.

Las amenidades en Champions Pointe son impresionantes
y están diseñadas para proporcionar comodidad y lujo a sus residentes.

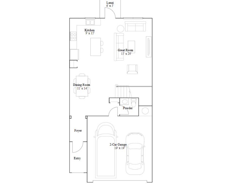
Planos únicos, para una propiedad única

Solicita más información

Compártenos tus datos de contacto y te enviaremos más información

Regístrate ahora